| 所在地 | 東京都練馬区北町8丁目25-5 |
|---|---|
| 交通 |
東京メトロ有楽町線 地下鉄赤塚駅 徒歩7分 東京メトロ副都心線 地下鉄赤塚駅 徒歩7分 東武東上線 下赤塚駅 徒歩10分 |
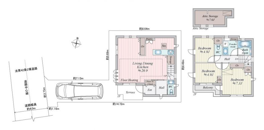
| 間取り/建物面積 | 2LDK / 89.32m² |
| 価格 | 8,480万円 |
| 構造/階/築年 | 木造 / 2階建 / 2024年2月 |
| 土地面積/土地権利 | 94.88m²(公簿) / 所有権 |
| 建蔽率/容積率 | 50% / 100% |
| 都市計画/用途地域 | 市街化区域 / 第一種低層住居 |
| 防火指定/高度地区 | 準防火地域 / 第1種高度地区 |
| 地目/地勢 | 宅地/平坦 私道負担:- - |
| 接道/セットバック | 西側4.00m公道に3.73m接道 / - - |
| コメント | 2024年2月築☆間取り変更可能で”ずっと住める家”での暮らしを実現♪ |
| 現況・引渡 | 居住中 相談 |
| 情報更新日 | 2026年02月12日 |
| 情報有効期限 | 2026年02月26日 |
| 取引態様 | 仲介 |
| 間取内訳/間取備考 | LDK20.9帖 / 洋9.8帖 / 洋7.3帖 / その他5.2帖 / その他間取りについては、子屋根裏収納5.2帖 |
|---|---|
| 設備条件/設備備考 | 日当たり良好 / 閑静な住宅街 / 免振・耐震設計 / システムキッチン / 対面キッチン / 浄水器 / 食器洗浄乾燥機 / 追い炊き / トイレ2ケ所 / バス1坪以上 / シャンプードレッサー / 洗浄便座 / 浴室乾燥機 / TVドアホン付き / 24時間セキュリティー / 防犯鍵 / 駐車場有り / 上水道(公営) / 下水道(公共下水) / ガス(都市ガス) / |
| 国土法届出 | 不要 |
| 契約条件/他費用 | ※現在居住中※ゴミ置き場持分2.50㎡×5/45有 / |
| 学校区 | 北町西小学校 北町中学校 |
| 北町8丁目戸建 お問い合わせ先 | |
|---|---|
| 会社名 | 株式会社 プラン建設 |
| 住所 | 東京都練馬区北町8-37-18 |
| TEL | 03-3931-6890 |
| 物件番号 | 0078-00000343 |